• CAPSE航空服务奖参选案例展示:深圳机场旗舰体验式母婴室
    CAPSE服务资讯  |   2019年03月21日 10:55:30

     

    图:深圳机场旗舰体验式母婴室 深圳机场供图

     

    随着2019民航服务峰会的临近,一年一度的CAPSE航空服务奖评选活动已拉开序幕。在创新服务奖案例征集期间,CAPSE收到了多家民航单位递交的创新服务案例,为进一步宣传国内外民航实体的创新之举,CAPSE于近期在民航资源网及CAPSE官网等平台持续展示初选案例。

     

    创新服务产品名称:深圳机场旗舰体验式母婴室

    申报单位:深圳市机场股份有限公司

     

    近年来,“公共场所建母婴室”话题备受关注,正视亿万母亲和孩子的现实需求,在公共场所配备母婴室,帮助哺乳妈妈解决“喂奶猫角落,换尿布当众解决”的尴尬现象,不仅是对母婴和孩童的关爱,更是衡量一个地方文明进步的重要标杆。公共场所母婴室配置问题是社会关注的焦点,也是深圳机场旅客关注点之一。

    深圳机场以动态优化适应母婴旅客需求,结合实际情况于2017年年底启动旗舰体验式母婴室建设项目,本着“目标可衡量、进度可监控、协助有保障”的原则,建立项目过程跟踪及问题协调两大机制,明确项目组成员、工作分工、实施计划等要素,采用多层次演绎分析方法,以用户为导向,把母婴旅客需求转化为设计需求、过程实施需求以及运营需求。开展质量策划的先导步骤,预先设计母婴体验示范区的关键区域、关键的零部件和关键工艺,从而为稳定性优化设计的具体实施指出了方向,确定了建设效果图。克服重重困难,与满足母婴旅客需求紧密联系,从而增强了母婴室的人性化设计,保证项目的一次性成功,完成最具鹏城特色、人性化母婴室示范区。

     

     

    图:深圳机场旗舰体验式母婴室 深圳机场供图

     

    相比传统公共场所母婴室,深圳机场旗舰体验式母婴室具有设计更人性化,功能更丰富,设备更齐全、更智能等特点。

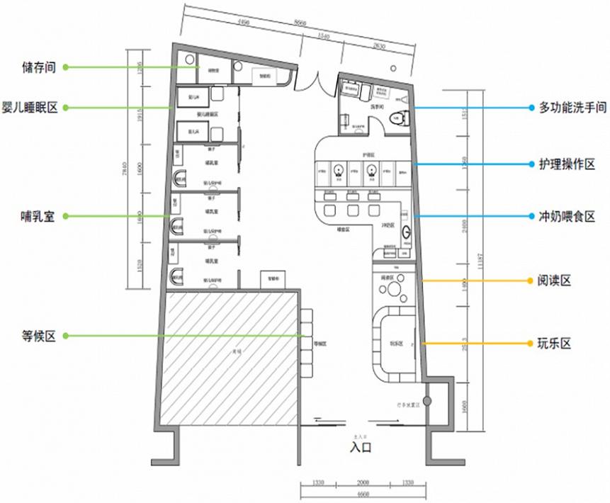
    一、打造人性化功能分区

    母婴室内设有儿童阅读玩乐区、冲奶区、喂食区、婴儿睡眠区、哺乳区、多功能亲子洗手间及随行家长的公共休息区等。

     

     

    图:深圳机场旗舰体验式母婴室 深圳机场供图

     

    二、构建合理动静分离模式

    母婴室围绕着以旅客体验为中心,动静分开,干净与污浊分开;充分满足二孩家庭多方面的需求;智能化设备及灯光系统,凸显智慧机场及智慧母婴室;打造国际儿童友好城市;家庭自助服务为主,设备全面智能化五大特点创新设计装修,实现设计人性化,动静分离合理化。

     

     

    图:深圳机场旗舰体验式母婴室 深圳机场供图

     

    三、引入智能化设施设备

    母婴室引入纸尿裤售卖智能柜、自动式垃圾桶、自动感应灯光系统等智能化设备,并配有消毒器、冲奶器、温奶器、婴儿保护座、婴儿床、洗衣烘干一体机等设施设备,增添科技时尚感,满足智慧机场战略愿景。

    四、引领安全,做到设计防护性

    母婴室内设有防撞护栏,隔断玻璃采用1.2厘米的加胶双层防爆玻璃,并对桌台处进行打磨光滑处理,母婴室内的消防设施及空气质量检验结果合格。

    五、自营管理旨在提供优质服务

    以家庭自助服务为主,同时配备4名形象好又懂得基本护理的年轻服务人员,并将不定时组织育婴类知识推广活动,实现管理创新。

    六、扩大服务对象范围

    母婴群体涵盖至-1岁到12岁孕、婴、幼、孩群体,由单一的母婴喂奶区升级为家庭式孩童候机体验区,超越旅客需求。

     

     

    图:深圳机场旗舰体验式母婴室 深圳机场供图

     

    深圳机场自转场以来高度关注母婴旅客乘机需求,响应深圳市友好儿童型城市建设的规划,结合公司构建舒适服务体验大格局的战略愿景,在各个洗手间旁配备母婴室,零散分布于航站楼内,结合各类便民服务举措,形成爱心全流程服务链。并结合现有母婴室分布格局,以母婴旅客需求为导向,打造最具体验式、旗舰式母婴室。深圳机场旗舰体验式母婴室项目自2017年12月起实施,于2018年7月底完成建设,累计实施7个月,室内消防验收、空气质量验收均符合国家标准,保证安全需求。

     

     

    图:深圳机场旗舰体验式母婴室 深圳机场供图

     

    设计方面:母婴室的整体设计以用户为导向,符合人体工程学,包括:在护理台、桌柜等嵌入式设施的高度设计上采取合理高度;提供冷热水供应水龙头设备,全部实现有37°C温水供应;配置哺乳区智能感应灯光,以调整母婴室内的灯光,母婴室整体灯光设计以暖灯光为主;配置纸尿裤售卖机,提供婴儿纸尿裤;提供量身定做的母婴座椅,均能满足母婴旅客喂养婴儿的高度需求。全方位提供细致化、智能化、人性化、优质化母婴服务。此外,母婴室内还添置了奶瓶消毒器、冲奶器、温奶器、洗衣烘干一体机、冰箱、微波炉、自动感应垃圾桶、婴儿保护座、婴儿床等设施设备,更好地满足母婴旅客实际需求,具备实用性、易用性。

    服务方面:主要以家庭自助服务为主,并配备4名形象好又懂得基本护理的年轻服务人员协助服务。

     

     

    图:深圳机场旗舰体验式母婴室 深圳机场供图

     

    管理方面:采用“自筹、自建、自营”模式,该项目建设投入约95万元,母婴服务人工投入约35万元/年,完成自筹、自建。响应深圳机场专业化“大外包”管理模式,由机场方自行管理,招选优质外包服务商提供现场服务,实现自营管理。

    服务亮点:结合现有母婴室的分布特点,深圳机场实现“分散式+旗舰式”母婴室的全覆盖,满足了广大母乳喂养妈妈的刚需。据悉,母婴群体涵盖至-1岁到12岁,其中0至3岁占比较大,约67%;而-1至0岁孕妇群体逐渐增加,成长空间很大,这也是机场在设置母婴室时不可忽略的一部分,甚至需要重点关注。目前深圳机场母婴体验示范区主要的服务人群为-1岁到12岁,扩大服务人群,做到全面服务。此外,母婴室自主创新的设计风格、人性化功能分区以及智能化设施设备均颇具亮点,具有极高的推广价值。

     

     

    图:深圳机场旗舰体验式母婴室 深圳机场供图

     

    服务成效:在如今的大数据时代中,除了提供基础服务,引入智能设施设备外,还需要建立信息化管理,通过信息分析,调取并建立数据模型。据统计,自2018年11月1日试运行以来,截至2019年1月底,深圳机场旗舰体验式母婴室累计服务母婴旅客1674人次,平均接待母婴家庭旅客达18组/天。2019年2月3日,母婴室接待量创新高,服务母婴家庭旅客达31组。通过母婴室内区域使用频率对比,得出阅读玩乐区是最受欢迎的区域,使用占比达39.07%;护理区与哺乳区使用占比分别为25.12%和21.86%。

     

     

    图:深圳机场旗舰体验式母婴室 深圳机场供图

     

    作为来往旅客感受城市“人文关怀”的窗口,深圳机场近年来从基础设施和服务举措两个方面入手,持续完善服务硬件、优化服务流程、提升服务品质,并在旅客个性化服务项目、爱心服务设施等方面重点“发力”。本次新建母婴体验示范区既响应深圳市“建设儿童友好型城市”号召,以实际行动推动全国二孩政策落地,保障妇女儿童权益,又更好地满足母婴旅客个性化出行需求,具备一定的社会责任效应。

    通过新建母婴体验示范区,强化了深圳机场打造最具体验式机场的企业愿景,更是希望能规范化母婴服务标准的形成,成为深圳市母婴室建设典范,为母婴群体提供精准人性化关怀服务。作为免费开放式母婴室,母婴体验示范区规模大、功能丰富,从单一母婴喂奶区衍生至孩童候机体验区,人性化多功能分区的划分及智能化设施设备的引入,无不彰显深圳机场“人文关怀”理念。开放至今,现场意见收集本收获不少宝妈们的暖心留言及服务点赞,旅客满意度达100%,精准化、细致化、人性化服务深受旅客好评。

     

     

    图:深圳机场旗舰体验式母婴室受旅客好评 深圳机场供图

     

    深圳机场作为深圳市对外开放的航空枢纽窗口,致力于创建“最具体验式”及数字化智慧机场,从关爱出行母婴旅客的实际需求出发,打造最具鹏城特色的母婴体验示范区,为母婴旅客出行提供优质服务。

    未来,深圳机场还将结合旅客需求,逐步引进和更新新兴科技产品,持续提升母婴室的服务体验。目前深圳机场正在筹备卫星厅的建设,在扩建的过程中将继续引入母婴服务理念,建设综合型家庭式旗舰母婴室,以实际行动推进落实全国二孩政策的服务保障,积极响应深圳市建设儿童友好型城市的号召,传播深圳关爱母婴品牌,打造“最具体验式”及数字化智慧机场,为母婴旅客提供一个舒适、温馨、整洁的候机环境。